Kohteet
Tervetuloa tarkastelemaan oikotie-kohteitamme.
Löydä unelmiesi koti, täydellinen liiketila tai lomakiinteistö.
Autamme sinua mielellämme.
Kuvia
Kartta
Madekuja 2, 45160 Kouvola
Osoite
Madekuja 2, 45160 Kouvola
Kuvaus
Heti vapaa yksitasoinen liiketila Kouvolan Lehtomäessä.
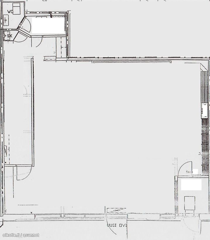
Entinen R-kioskin tila keskeisellä sijainnilla. Yli 100m2 yhtenäistä tilaa, jota on mahdollista vuokralaisen tarpeiden mukaan muokata. Rakennuksen läheisyydessä riittävästi asiakaspysäköintitilaa.
Esittelyt sovittaessa, kysy lisää! Vuokrasopimuksen kesto neuvoteltavissa.
Entinen R-kioskin tila keskeisellä sijainnilla. Yli 100m2 yhtenäistä tilaa, jota on mahdollista vuokralaisen tarpeiden mukaan muokata. Rakennuksen läheisyydessä riittävästi asiakaspysäköintitilaa.
Esittelyt sovittaessa, kysy lisää! Vuokrasopimuksen kesto neuvoteltavissa.
Perustiedot
Sijainti
Madekuja 2, 45160 Kouvola
Kaupunginosa
Lehtomäki
Kohdenumero
24346620
Asuinpinta-ala
114.5 m²
Huoneita
0
Vapautuminen
Heti vapaa.
Talon ja tontin tiedot
Rakennuksen tyyppi
Kerrostalo
Rakennusvuosi
1989
Energialuokka
C2018
Kiinteistönhoito
Huoltoyhtiö
Tontin omistus
Kyllä
Hintatiedot
Muut maksut
Vesimaksun lisätiedot
Kuuluu vuokraan
Ota yhteyttä
Olemme aina valmiina auttamaan
Otathan yhteyttä jos olet kiinnostunut ilmoittamistamme
kohteista, etsit välittäjää
tai haluat keskustella kanssamme

/ot-real-estate-mediabank-prod/346/937/source/228739643)
/ot-real-estate-mediabank-prod/981/399/source/226993189)
/ot-real-estate-mediabank-prod/091/399/source/226993190)
/ot-real-estate-mediabank-prod/191/399/source/226993191)
/ot-real-estate-mediabank-prod/291/399/source/226993192)
/ot-real-estate-mediabank-prod/391/399/source/226993193)
/ot-real-estate-mediabank-prod/491/399/source/226993194)
/ot-real-estate-mediabank-prod/591/399/source/226993195)
/ot-real-estate-mediabank-prod/691/399/source/226993196)
/ot-real-estate-mediabank-prod/791/399/source/226993197)